Présentation du futur groupe scolaire aux parents d’élèves
Le lundi 18 juin, s’est déroulée à la salle des fêtes une réunion de présentation du nouveau groupe scolaire et de l’école provisoire en présence de M. Gill Geryl et de l’architecte du projet. Ils ont répondu aux questions des parents d’élèves présents et ont pu les rassurer quant au fonctionnement de l’école provisoire. Le début des travaux pour le nouveau groupe scolaire est prévu pour le premier trimestre 2019.
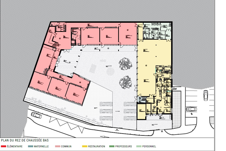
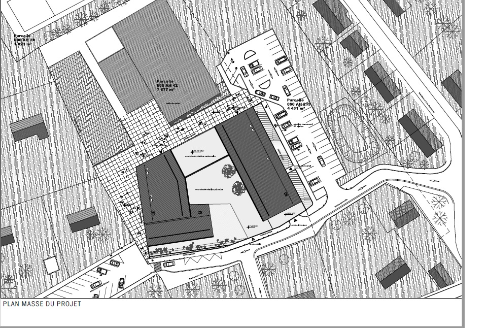
Vous trouverez ci-dessous les plans du futur groupe scolaire et de l’école provisoire :
Articles connexes
Travaux sur le réseau de transport d’électricité
Des travaux de végétation, nécessaire à l’entretien des liaisons électriques HTB vont être entrepris sur le territoire de la commune.
Activités associatives dans nos locaux et installations communales
A l’exception de la pratique du tennis par les adhérents du club en simple seulement, sur le terrain extérieur, toutes
Exposition “De la toile à l’objectif”
Le samedi 19 et dimanche 20 décembre, une exposition mêlant peinture et photographie a eu lieu à la chapelle d’Etran.
Aucun commentaire
Écrire un commentaireSeuls les utilisateurs enregistrés peuvent commenter.





















